Specificații tehnice:
✓ Spații de birouri configurabile, proiectate pentru a îmbina confortul angajaților cu eficiența operațională
✓ Compartimentări flexibile, zonele pot fi adaptate cu ușurință nevoilor fiecărei companii, de la birouri open space la spații private sau mixte
✓ Pereți vitrați care lasă lumina naturală să pătrundă pe tot parcursul zilei (Est, Sud, Vest) și compartimentări din sticlă/aluminiu
✓ Plafon suspendat din tavan casetat metalic alb
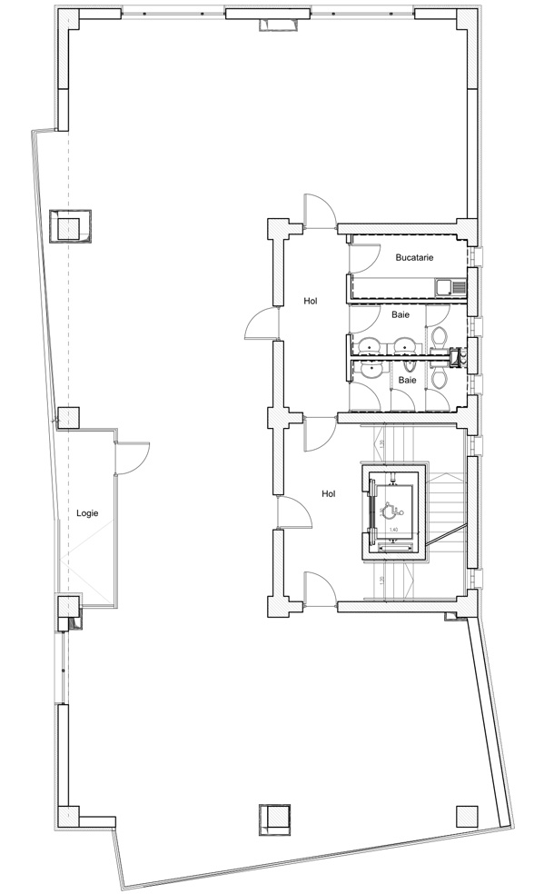
✓ 2 grupuri sanitare
✓ 1 bucătărie complet mobilată și utilată
✓ Certificarea energetică Clasa A
✓ Sistem de iluminat cu comandă wireless
✓ Pardoseală flotantă cu prize pentru rețea, telefon și curent
✓ 6 ventilo-convectoare pe patru căi (pentru utilizare simultană climatizare/încălzire)
✓ Mochetă de trafic intens
✓ Plăci ceramice în zona spațiilor comune
✓ Control acces cu posibilitate de pontare
✓ Logie exterioară pentru pauze scurte și eficiente
